Top.Mail.Ru
Купить загородную недвижимость площадью 101 м² за 10000000 рублей в Тюменской области | Агентство недвижимости «Вплюсе. Топ» — Недвижимость России

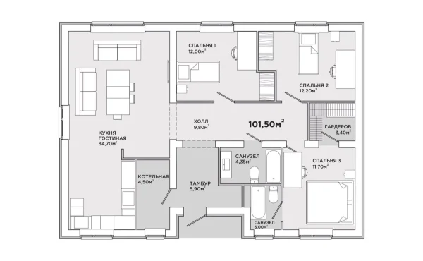
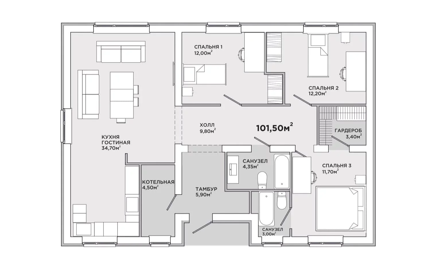
Коттедж, 101 кв.м., (участок 9)

Квартал Ривьера
Жилой комплекс / Коттеджный посёлок Квартал Ривьера
Тип объявления Продажа
Категория объекта коттедж
Количество комнат 3
Общая площадь 101 м2
Этажность 1
Площадь участка 9 сот.
Расстояние до города, км. 15
Удобства Электричество, Водопровод, Газ, Отопление
 


+79504871215
info@vpluse.top
Max
ВКонтакте
Одноклассники