Top.Mail.Ru
Купить новую квартиру-студию 29.22 м² на 19/20 этаже в ЖК «Страна.Прибрежная», г. Тюмень за 7466667 ₽ | Агентство недвижимости «Вплюсе.Топ» — Недвижимость России

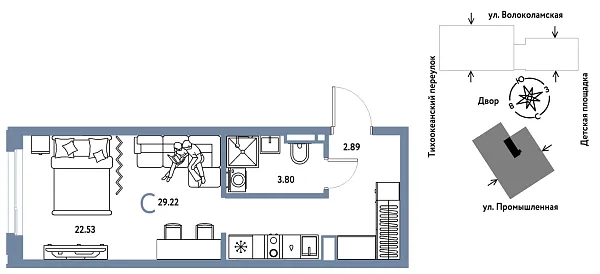
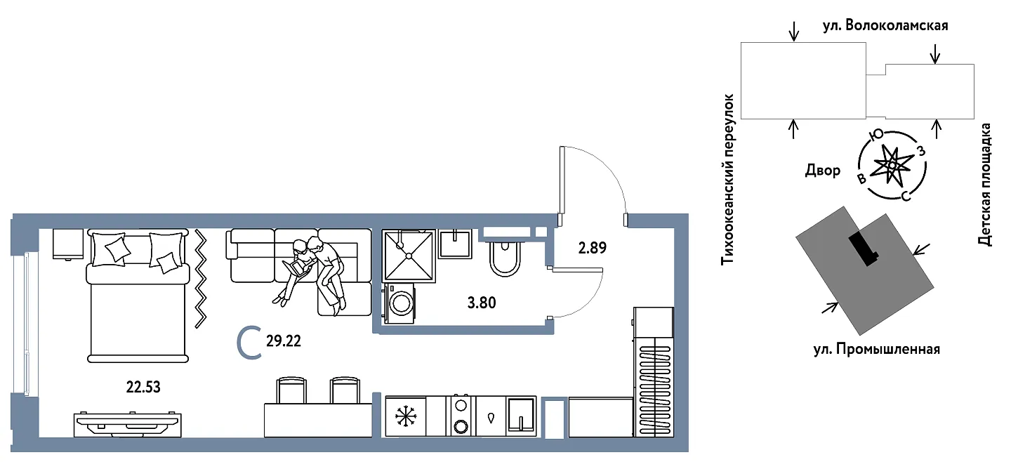
Количество комнат: Студия, 29.22 кв.м.

Тюмень, Мельникайте, 42 корпус 1
Жилой комплекс / Коттеджный посёлок Страна.Прибрежная
Количество комнат Студия
Этаж 19
Общая площадь 29.22 м2
Этажность 20
Жилая площадь 15.83 м2
Площадь кухни 6.7 м2
Санузел совмещенный
Вид из окон Дом
Корпус дома Квартал Лазурный ГП-1
 


+79504871215
info@vpluse.top
Max
Telegram
ВКонтакте
Одноклассники