Top.Mail.Ru
Купить новую трехкомнатную квартиру 51.28 м² на 28/29 этаже в ЖК «Страна.Береговая», г. Тюмень за 13847059 ₽ | Агентство недвижимости «Вплюсе.Топ» — Недвижимость России

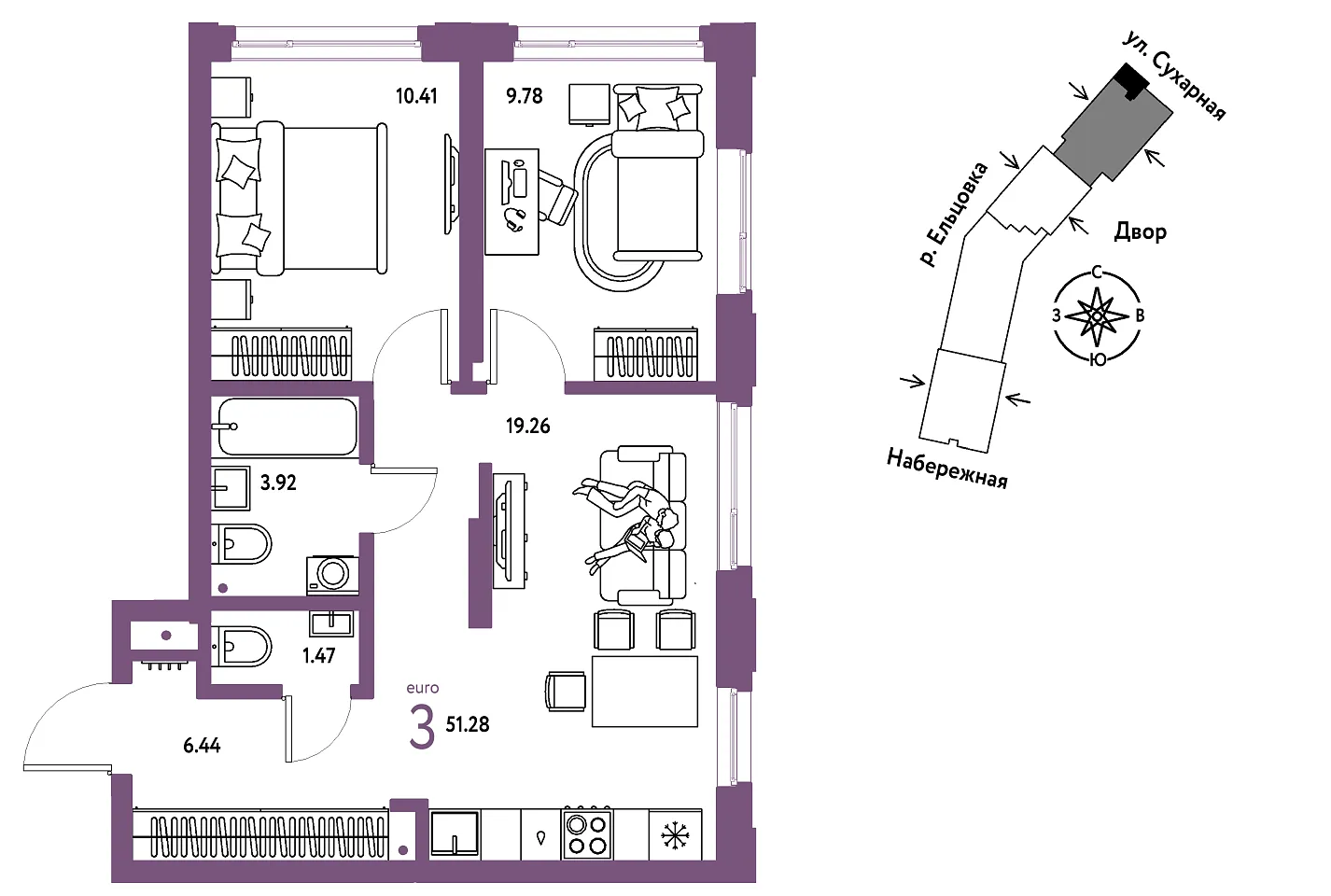
Количество комнат:, кв.м.

Новосибирск, Новосибирск, ул. Сухарная, 109/2
Жилой комплекс / Коттеджный посёлок Страна.Береговая
Количество комнат 3
Этаж 28
Общая площадь 51.28 м2
Этажность 29
Жилая площадь 33.24 м2
Площадь кухни 6.21 м2
Санузел 2
Вид из окон Парк+Улица
Корпус дома Страна.Береговая ГП-1
 


+79504871215
info@vpluse.top
Max
ВКонтакте
Одноклассники