Top.Mail.Ru
Купить новую трехкомнатную квартиру 55.7 м² на 17/20 этаже в ЖК «Страна.Прибрежная», г. Тюмень за 10655556 ₽ | Агентство недвижимости «Вплюсе.Топ» — Недвижимость России

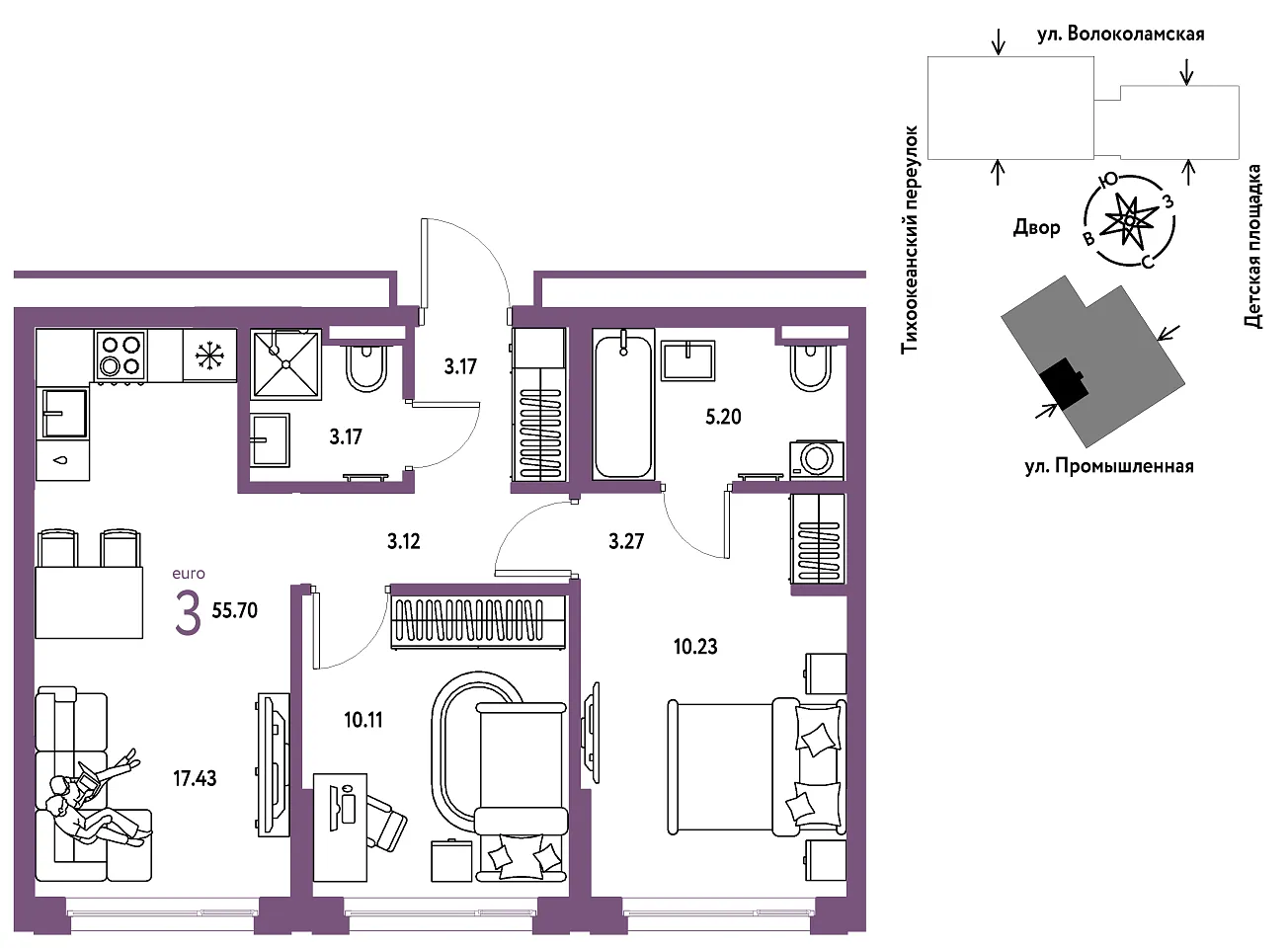
Количество комнат: 3, 55.7 кв.м.

Тюмень, Мельникайте, 42 корпус 1
Жилой комплекс / Коттеджный посёлок Страна.Прибрежная
Количество комнат 3
Этаж 17
Общая площадь 55.7 м2
Этажность 20
Жилая площадь 31.64 м2
Площадь кухни 6.13 м2
Санузел 2
Вид из окон Улица
Корпус дома Квартал Лазурный ГП-1
 


+79504871215
info@vpluse.top
Max
Telegram
ВКонтакте
Одноклассники