Top.Mail.Ru
Купить новую двухкомнатную квартиру 73.08 м² на 14/17 этаже в ЖК «Новин», г. Тюмень за 12970000 ₽ | Агентство недвижимости «Вплюсе.Топ» — Недвижимость России

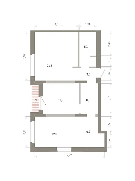
Количество комнат: 2, 73.08 кв.м.

Сургут, Северный жилой, ул. Игоря Киртбая, стр 7
Жилой комплекс / Коттеджный посёлок Новин
Количество комнат 2
Этаж 14
Общая площадь 73.08 м2
Этажность 17
Жилая площадь 24.51 м2
Площадь кухни 21.76 м2
Балкон лоджия
Тип дома монолит
Корпус дома Дом 7
 


+79504871215
info@vpluse.top
Max
Telegram
ВКонтакте
Одноклассники