Top.Mail.Ru
Купить новую двухкомнатную квартиру 37.08 м² на 17/20 этаже в ЖК «Страна.Прибрежная», г. Тюмень за 8200000 ₽ | Агентство недвижимости «Вплюсе.Топ» — Недвижимость России

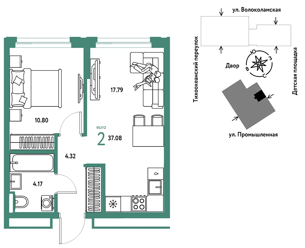
Количество комнат: 2, 37.08 кв.м.

Тюмень, Мельникайте, 42 корпус 1
Жилой комплекс / Коттеджный посёлок Страна.Прибрежная
Количество комнат 2
Этаж 17
Общая площадь 37.08 м2
Этажность 20
Жилая площадь 23.4 м2
Площадь кухни 5.19 м2
Санузел совмещенный
Вид из окон Двор
Корпус дома Квартал Лазурный ГП-1
 


+79504871215
info@vpluse.top
Max
Telegram
ВКонтакте
Одноклассники