Top.Mail.Ru
Купить новую однокомнатную квартиру 45.98 м² на 2/9 этаже в ЖК «Страна.Тополёвая», г. Тюмень за 10647059 ₽ | Агентство недвижимости «Вплюсе.Топ» — Недвижимость России

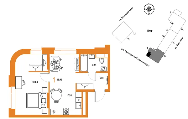
Количество комнат: 1, 45.98 кв.м.

Новосибирск, Новосибирск, Октябрьский район, Новосибирская область
Жилой комплекс / Коттеджный посёлок Страна.Тополёвая
Количество комнат 1
Этаж 2
Общая площадь 45.98 м2
Этажность 9
Жилая площадь 18.82 м2
Площадь кухни 17.28 м2
Санузел совмещенный
Вид из окон Улица+Дом
Корпус дома Страна.Тополёвая ГП-1.2
 


+79504871215
info@vpluse.top
Max
ВКонтакте
Одноклассники