Top.Mail.Ru
Купить новую однокомнатную квартиру 45.59 м² на 5/8 этаже в ЖК «Октябрьский на Туре», г. Тюмень за 7990000 ₽ | Агентство недвижимости «Вплюсе.Топ» — Недвижимость России

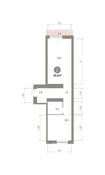
Количество комнат: 1, 45.59 кв.м.

Тюмень, Калининский, ​Томская, 52 к6 стр
Жилой комплекс / Коттеджный посёлок Октябрьский на Туре
Количество комнат 1
Этаж 5
Общая площадь 45.59 м2
Этажность 8
Жилая площадь 10.73 м2
Площадь кухни 19.02 м2
Балкон балкон
Тип дома монолит
Корпус дома Дом 10
 


+79504871215
info@vpluse.top
Max
Telegram
ВКонтакте
Одноклассники